Dom Świdry gm. Opole Lubelskie
Świdry gm. Opole Lubelskie Pokaż na mapie ›
Ogłoszenie archiwalne Wygasło: Poniedziałek, 16 Marzec, 2026 22:08
599 000 zł
3423 zł/m2
Szczegóły ogłoszenia
- Kategoria: Domy / Sprzedaż
- Powierzchnia:175 m2
- Liczba pokoi:3 pokoje
- Pow. działki:5825 m2
- Rynek:Wtórny
- Rok budowy:1971
- Sprzedaż:Pośrednik
- Cena: 599 000 zł / 3423 zł/m2
Opis oferty
Na sprzedaż dom jednorodzinny o powierzchni całkowitej 175 m2.Lokalizacja: Świdry, gmina Opole Lubelskie, powiat opolski, woj. lubelskie.
Dom: posiada 2 kondygnacje naziemne, jest częściowo podpiwniczony.
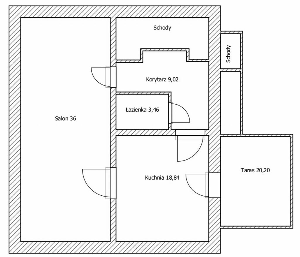
Przeszedł rozbudowę w 2016 roku, wraz z wymianą instalacji i stolarki. Pokryty blachodachówką. Do domu przylega taras. Na parterze znajdziemy kuchnię, duży salon (36 m2), łazienkę z WC i przedpokój. Poddasze to 4 sypialnie, łazienka i garderoba. Dom ogrzewany piecem na drewno i węgiel. Ciepła woda z zasobnika, ogrzewana solarami.
Parter - 70 m2,
Poddasze - 55 m2,
Piwnica - 50 m2.
Duża działka: powierzchnia to 5825 m2 w kształcie prostokąta o bokach 23 x 260 m, zabudowana domem, dwoma garażami z wiatami oraz dużą altanką. Znajdziemy tu miejsce do zabawy dla dzieci oraz do spędzania czasu. Dodatkowo spory plac na auta lub do zagospodarowania. Teren ogrodzony. Wjazd z asfaltowej drogi gminnej. Za podwórkiem znajduje się pole uprawne o powierzchni 38 arów. Dodatkowo do nieruchomości przynależy działka leśna o powierzchni 47 arów.
Media: woda z wodociągu, prąd, CWU z dużego zasobnika, ogrzewanie piecem, światłowód.
Zapraszam do kontaktu po więcej informacji,
573 - pokaż numer telefonu -
Marcin Zając, BN Kwadrat
:: Oferta wysłana z programu mediaRent (media-rent.eu) ::
Numer oferty: 3533/BNK/DS
Sprawdź zainteresowanie tym ogłoszeniem
Wyświetlenia
Data dodania
Ostatnio widziany
Obserwujących
Wysłane zapytania
Odsłony telefonu
Powiadom o podobnych ogłoszeniach
Lokalizacja: Świdry
Kategoria: Nieruchomości » Domy » Sprzedaż
Cena: od 509000 zł do 689000 zł Powierzchnia : od 149 m2 do 201 m2
Chcę otrzymywać powiadomienia o nowych ofertach
To ogłoszenie jest archiwalne i może być nieaktualne.
Marcin Zając
Konto firmowe
Na Lento.pl od 12 gru 2024
Odpowiada szybko
Strona użytkownika
- Wypromuj ogłoszenie
- Zgłoś naruszenie
- Edytuj/usuń ogłoszenie
- Udostępnij ogłoszenie
- Dodaj na Facebook





























